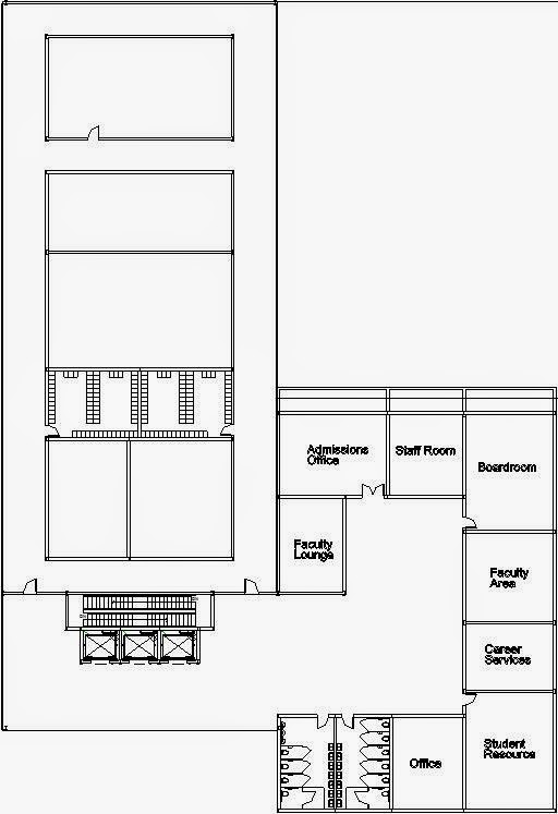
The restaurant area would work better for views and table seating if it was the whole width of the box and the kitchen was more square by the service elevator. Perhaps the entrance to the restaurant could be where the volume begins from the school volume. There is no reason the kitchen needs the corner windows with the best views.... The faculty offices could be a suite of offices and then some people could sit in the middle area - there could be a few offices with doors and walls - but in most offices not everyone will have a closed door office. Take a look at different office layouts - especially for schools. I think you need to start to show furniture in the spaces that are quite large.
The restaurant area would work better for views and table seating if it was the whole width of the box and the kitchen was more square by the service elevator. Perhaps the entrance to the restaurant could be where the volume begins from the school volume. There is no reason the kitchen needs the corner windows with the best views....
ReplyDeleteThe faculty offices could be a suite of offices and then some people could sit in the middle area - there could be a few offices with doors and walls - but in most offices not everyone will have a closed door office. Take a look at different office layouts - especially for schools.
I think you need to start to show furniture in the spaces that are quite large.